santé et soins de santé

Cartouche Autocad

Indico Cern Ch Event Contributions Attachments Procedure Plans Cdd Pdf

Je Vais Redessiner Avec L Outil Autocad Vos Plans Ou Vos Croquis De Plans Freehali

Comment Creer Un Cartouche Utilisateur Et Des Cadres De Presentation Graitec Lineis

Cadre Cartouche Sur Autocad Youtube

Title Blocks For Cad

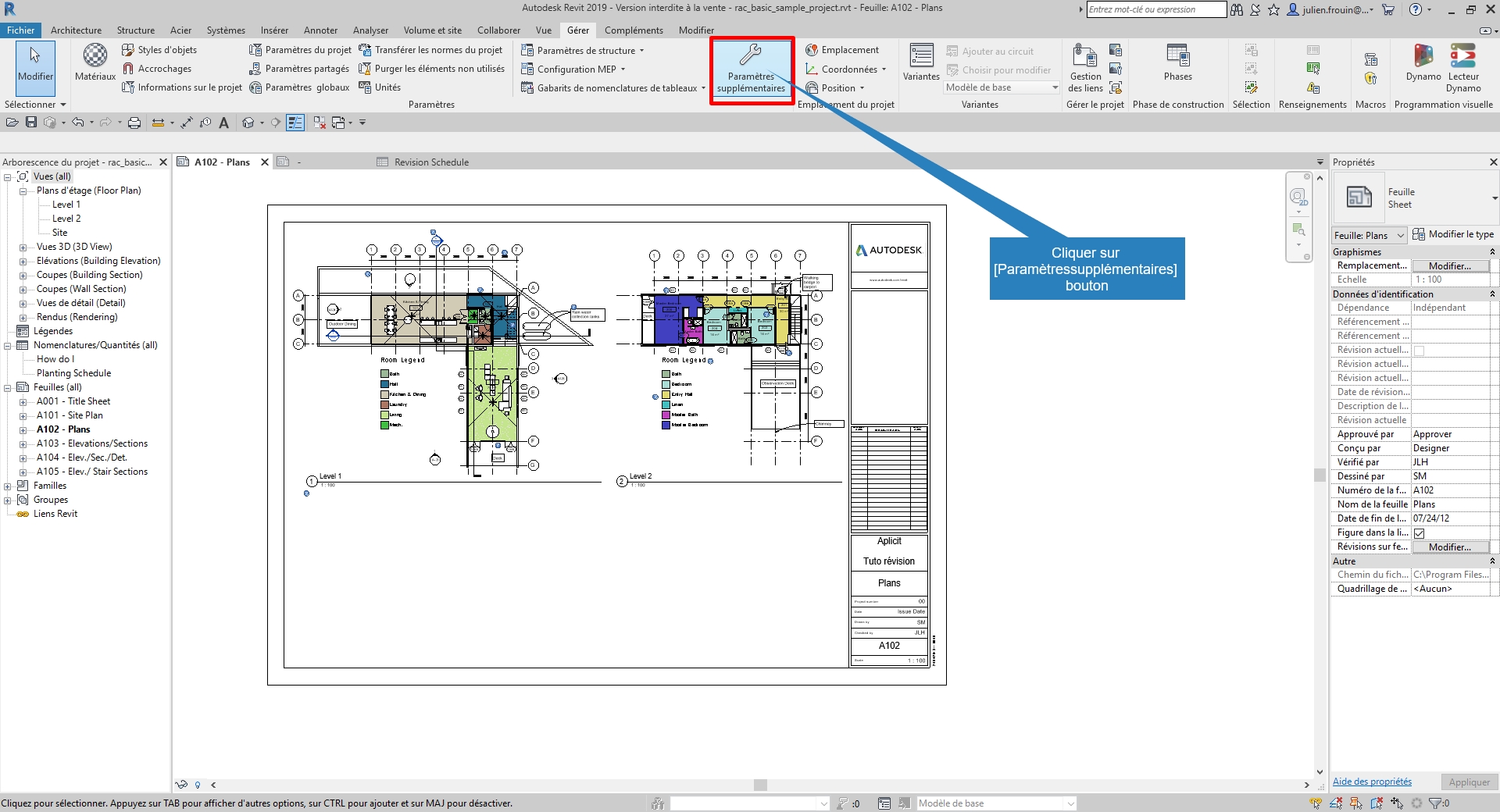
Telecharger Cartouche Avec Nomenclature Des Modifications Format Revit Categorie Divers Hexabim

GENERAL AUTOCAD STANDARDS Document/Sheet Layout Sheet Sizes The table of sheet sizes shown here represents a reference according to the NCS Compatibility between English and metric sizes is preferred Defined Sizes Imperial Type Size Inches A Arch A 9x12 Ansi A 85x11 B Arch B 12x18 Ansi B 11x17.

Cartouche autocad. à améliorer sa performance avec le logiciel Autocad Les opérations standards et la présentation du logiciel Autocad ne sera pas répété ici, l’étudiant devra plutôt prendre connaissance du livre de formation remis lors du début du cours Dans ce document les commandes ou variables en anglais seront identifiées comme suit (mots. CAD Forum BlockRamecek A0 11x841 free CADBIM block library (DWGRFAIPT, 3D/2D) by CAD Studio. Dans le cartouche, vous pouvez éventuellement esquisser une bordure pour la zone de la nomenclature de révision Cliquez sur l'onglet Vue le groupe de fonctions Créer (Nomenclature des révisions) Dans l'onglet Champs de la boîte de dialogue Propriétés des révisions, ajoutez les champs à inclure dans la nomenclature.

à améliorer sa performance avec le logiciel Autocad Les opérations standards et la présentation du logiciel Autocad ne sera pas répété ici, l’étudiant devra plutôt prendre connaissance du livre de formation remis lors du début du cours Dans ce document les commandes ou variables en anglais seront identifiées comme suit (mots. 3 Déjà un cartouche A0 n'est normalement pas du tout graphiquement la meme chose qu'un A3 un autre truc a gérer Updated 1 En y insérant un DWG d'origine a origine Simplement dessiner une croix dans AutoCAD et insérer celleci. Blocs AutoCad et autres logiciels CAO BlocsAutoCADcom est un site nouveau, simple et clair pour télécharger des milliers de fichiers dwg pour AutoCAD et d'autres logiciels de DAO CAO à utiliser dans des projets d'architecture ou des plans de design intérieur, ces fichiers sont compatibles avec AutoCAD 00 à la dernière version ou.

The cartouche 3D model that you can download here is rectangular in shape, measuring 1194x870x605mm, but its dimensions can easily be changed by scaling in any 3D CAD or CAM software for milling, routing and engraving The cartouche is an architectural decorative element and represents the framework around a relief, image or coat of arms. Top Rated Products Architectural CAD Drawings Bundle(Best Collections!!) $ $ 9900 ★Total 107 Pritzker Architecture Sketchup 3D Models★ (Best Recommanded!!) $ 9900 $ 7500 ★Total 98 Types of Commercial,Residential Building Sketchup 3D Models Collection(Best Recommanded!!) $ 9900 $ 7500 💎★Total 107 Pritzker Architecture Sketchup 3D Models★ (💎Best Recommanded. Formation accélérée autocad solid workscatia robot bat revitcovadisarchicadphotoshopillustratorindesignword excel power point.

Specify files and folders associated with drawing and sheet set templates Set or change the template file location for drawings or sheet sets, the default template associated with the QNEW command, and the default template for sheet creation and page setup overrides Rightclick the drawing area and choose Options If necessary, click the Files tab In the tree view, expand Template Settings. Je pose d'abord le contexte, j'ai un fichier autocad avec plusieurs présentations, ce que je voudrais faire c'est pouvoir changer par exemple la date ou le nom du dessinateur sur le cartouche sur UNE SEULE présentation et que le changement se fasse automatiquement pour les autres présentations. I have created this 3D file moving the viewcube to create an axonometric projection (as you see in the photo) Now I have to insert in this file a 2D cartouche in order to stamp all this file on a paper.

Added two designs with differing fonts Can be interchanged I can also make the title block editable via attributes in Autocad and you would just need to populate the required field text/data (ie project number, cage code, description, etc) and it will automatically populate all the required field (fool proof so you don't accidently miss editing the same field data (ie, project number). For AutoCAD, Microstation etc) In this section you will find FREE Title Blocks that you can use in your projects (free for personal and commercial use) These files can be freely distributed but only in their original form, the filename(s) must include the following wwwYourSpreadsheetscouk. Upload Sign up to our Free newsletter for our latest CAD models Subscribe Become a Premium Member Membership Plans Follow via Linkedin Follow via Twitter Follow via Google Follow via Follow via Instagram.

The Cartouche has a long lasting legend in Ancient Egypt, that dates back over 5000 years, when it was used for the first time by Pharaoh Snefru in the reign of the fourth dynasty, as an Amulet that protects the Pharaoh and attract the good Energy The Egyptian word of Cartouche is SHEN (eternity). Cartouches usually have a rounded or oblong shape, but other forms are possible as well The feature that makes cartouches so memorable is the elaborate scrollwork usually found on these structures The decorative value of cartouches makes them a wonderful addition to the interior or exterior of most buildings, whether they're worldrenowned. Problème Vous souhaitez savoir comment rechercher et télécharger un cartouche à utiliser avec AutoCAD ou AutoCAD LT Solution Disponibles pour le téléchargement Vous trouverez des gabarits AutoCAD à télécharger aux emplacements suivants Gabarits AutoCAD 21 Gabarits AutoCAD Gabarits AutoCAD 19 Gabarits AutoCAD 18 Gabarits AutoCAD 17 Gabarits AutoCAD 16 Gabarits.

Blocs AutoCad et autres logiciels CAO BlocsAutoCADcom est un site nouveau, simple et clair pour télécharger des milliers de fichiers dwg pour AutoCAD et d'autres logiciels de DAO CAO à utiliser dans des projets d'architecture ou des plans de design intérieur, ces fichiers sont compatibles avec AutoCAD 00 à la dernière version ou. Using a lower output resolution decreases the PDF file size but increases the roundoff errors Understanding the Role of Inference After the PDF data is imported, the biggest challenge is inferenceThis is a process by which AutoCAD starts with the equivalent of exploded data (what we affectionately call “grass clippings”) and makes some best guesses to reconstruct more precise locations. 3ds max , AutoCAD , Rhino , Vector works , Sketchup , Revit and more;.

Choose your favorite cartouche drawings from millions of available designs All cartouche drawings ship within 48 hours and include a 30day moneyback guarantee. Problème Vous souhaitez savoir comment rechercher et télécharger un cartouche à utiliser avec AutoCAD ou AutoCAD LT Solution Disponibles pour le téléchargement Vous trouverez des gabarits AutoCAD à télécharger aux emplacements suivants Gabarits AutoCAD 21 Gabarits AutoCAD Gabarits AutoCAD 19 Gabarits AutoCAD 18 Gabarits AutoCAD 17 Gabarits AutoCAD 16 Gabarits. Le cartouche est un cadre de dessin inséré sous forme de bloc AutoCAD dans un autre dessin L'utilitaire de cartouche peut mettre à jour les attributs du cartouche Commencez un nouveau dessin vierge Dessinez la bordure du dessin à l'aide des commandes et objets standard d'AutoCAD.

3ds max , AutoCAD , Rhino , Vector works , Sketchup , Revit and more;. Upload Sign up to our Free newsletter for our latest CAD models Subscribe Become a Premium Member Follow via Linkedin Follow via Twitter Follow via Google Follow via Follow via Instagram. This article describes how to correctly prepare the file for plotting in AutoCAD In particular How to manage drawing settings and scale when plotting directly from model space How to change the page size and how to manage scale representations in paper space As a general rule, it's recommended to use the model space to draw in actual size (or in 11 scale) Thus, start by verifying what.

For AutoCAD, Microstation etc) In this section you will find FREE Title Blocks that you can use in your projects (free for personal and commercial use) These files can be freely distributed but only in their original form, the filename(s) must include the following wwwYourSpreadsheetscouk. Cartouche 3D models 7 3D Cartouche models available for download 3D Cartouche models are ready for animation, games and VR / AR projects Use filters to find rigged, animated, lowpoly or free 3D models Available in any file format including FBX, OBJ, MAX, 3DS, C4D. The ComputerAided Design ("CAD") files and all associated content posted to this website are created, uploaded, managed and owned by third party users Each CAD and any associated text, image or data is in no way sponsored by or affiliated with any company, organization or realworld item, product, or good it may purport to portray.

Egypt Cartouche Necklace, Hieroglyph Necklace Jewelry, Custom Made Necklace, 925 Sterling Silver / 14K Gold Egyptian Pendant with Name PhoenixSilverLeather From shop PhoenixSilverLeather 5 out of 5 stars (76) 76 reviews $ 4800 FREE shipping Favorite Add to. Nous on a simplement un cartouche type Dedans on mets l'échelle, l'indice etc et les indices précédent Les noms, échelle sont remplit manuellement dans des attributs Du standard en faite Après dans ce cas c'est de faire une appli en NET qui remplira pour toi les cartouches Là oui c'est beaucoup plus souple. 3ds max , AutoCAD , Rhino , Vector works , Sketchup , Revit and more;.

A little more "Italianate" in flavor, this is one of our larger Cartouches "L x 14 "W x 3 7/8"D CAD RMF 7026 MarALago Cartouch This is among our larger cartouch pieces It has many design applications inclucing ceiling or the top of a very high panel 28 1/2"L x 31 1/2"W x 1 3/4"D. How can I insert a cartouche 2D into my 3D file?. This CAD template can be used in your AutoCAD drawings CAD Models In This Category Window detail dwg Bathroom Bath (FREE 1) Bar Counter for Kitchen 0005 dwg Drawing Transit Van (LWB) Plan 641mm Wide Leather Ward Seater with 50mm Thick Foam Right Side Elevation dwg Drawing.

Upload Sign up to our Free newsletter for our latest CAD models Subscribe Become a Premium Member Membership Plans Follow via Linkedin Follow via Twitter Follow via Google Follow via Follow via Instagram. Free CAD and BIM blocks library content for AutoCAD, AutoCAD LT, Revit, Inventor, Fusion 360 and other 2D and 3D CAD applications by Autodesk CAD blocks and files can be downloaded in the formats DWG, RFA, IPT, F3DYou can exchange useful blocks and symbols with other CAD and BIM users. CAD blocks are named groups of objects that act as a single 2D or 3D object You can use them to create repeated content, such as drawing symbols, common components, and standard details Blocks help you save time, maintain consistency, and reduce file size, since you can reuse and share content.

GENERAL AUTOCAD STANDARDS Document/Sheet Layout Sheet Sizes The table of sheet sizes shown here represents a reference according to the NCS Compatibility between English and metric sizes is preferred Defined Sizes Imperial Type Size Inches A Arch A 9x12 Ansi A 85x11 B Arch B 12x18 Ansi B 11x17. AutoCAD 2D drawings are commonly drawn in model space at a 11 scale (fullsize) In other words, a 12foot wall is drawn at that size The drawings are then plotted or printed at a plot "scale" that accurately resizes the model objects to fit on paper at a given scale such as 1/8" = 1' In some drawings, data in model space hasn't been drawn at a 11 scale Among the reasons are user errors. Download this FREE CAD block of an A3 horizontal titleblock This is a drawing template file (dwt) and is fully loaded with attribute text for you titleblock text CAD Models In This Category 691 Block dwg drawing 1584mm Height Horizontal Pattern Grilled Fence Rear Elevation dwg Drawing.

AutoCAD Exercises & Practice Drawings for 2D & 3D CAD Users Hello & welcome dear friends, I am Sachidanand Jha founder of CADin360 I am from India I am Engineer by heart and soul I found that lots of AutoCAD Students were looking for AutoCAD Exercises, AutoCAD Practice drawings, AutoCAD 2D drawing, AutoCAD 3D drawing & so on. Petit tuto pour apprendre à insérer des champs dans un cartouche et ainsi automatiser son renseignement et ses mises à jour. Top Rated Products Architectural CAD Drawings Bundle(Best Collections!!) $ $ 9900 ★Total 107 Pritzker Architecture Sketchup 3D Models★ (Best Recommanded!!) $ 9900 $ 7500 ★Total 98 Types of Commercial,Residential Building Sketchup 3D Models Collection(Best Recommanded!!) $ 9900 $ 7500 💎★Total 107 Pritzker Architecture Sketchup 3D Models★ (💎Best Recommanded.

Dans le cartouche, vous pouvez éventuellement esquisser une bordure pour la zone de la nomenclature de révision Cliquez sur l'onglet Vue le groupe de fonctions Créer (Nomenclature des révisions) Dans l'onglet Champs de la boîte de dialogue Propriétés des révisions, ajoutez les champs à inclure dans la nomenclature. Le cartouche est un cadre de dessin inséré sous forme de bloc AutoCAD dans un autre dessin Le cadre du cartouche peut être inséré en tant que bloc dans un fichier de gabarit de dessin AutoCAD Si votre cartouche de dessin se compose d'un bloc AutoCAD avec des attributs, AutoCAD Electrical peut s'y associer. Saves selected objects or converts a block to a specified drawing file Find The Write Block dialog box is displayed Entering wblock at the Command prompt displays a standard file selection dialog box in which to specify a name for the new drawing file, followed by command prompts If FILEDIA is set to 0, the standard file selection dialog box is suppressed.

CARTOUCHE™ brand upholstery, proudly offered to you by MAC's Antique Auto Parts, carries the world’s largest selection of interior fabrics and colors for Antique Fords and Classic Fords in both authentic materials and nonauthentic materials for the budgetminded enthusiast Precisely hand crafted in the USA, Classic Ford Upholstery by Cartouche offers antique & vintage automobile interior. Cartouche overview With their captivating and complex designs, cartouches are architectural elements that are miles away from ordinary Cartouches usually have a rounded or oblong shape, but other forms are possible as well The feature that makes cartouches so memorable is the elaborate scrollwork usually found on these structures. AutoCAD Exercises & Practice Drawings for 2D & 3D CAD Users Hello & welcome dear friends, I am Sachidanand Jha founder of CADin360 I am from India I am Engineer by heart and soul I found that lots of AutoCAD Students were looking for AutoCAD Exercises, AutoCAD Practice drawings, AutoCAD 2D drawing, AutoCAD 3D drawing & so on.

The ComputerAided Design ("CAD") files and all associated content posted to this website are created, uploaded, managed and owned by third party users Each CAD and any associated text, image or data is in no way sponsored by or affiliated with any company, organization or realworld item, product, or good it may purport to portray. Cartouche Autocad Dwg Gratuit Planete Cartouche Comment Créer Un Cartouche Et Définir Un Format Dimpression Dans Revit Custom Templates Free Blocks Download Free Cad Blocks Drawings Download Cartouche Wooden Heart Locket 7 Steps Architectural Stock Illustrations Architectural Stock 22 Best Blocks Carvings Images In 18 Cad Drawing. 3ds max , AutoCAD , Rhino , Vector works , Sketchup , Revit and more;.

Free CAD and BIM blocks library content for AutoCAD, AutoCAD LT, Revit, Inventor, Fusion 360 and other 2D and 3D CAD applications by Autodesk CAD blocks and files can be downloaded in the formats DWG, RFA, IPT, F3DYou can exchange useful blocks and symbols with other CAD and BIM users. Upload Sign up to our Free newsletter for our latest CAD models Subscribe Become a Premium Member Follow via Linkedin Follow via Twitter Follow via Google Follow via Follow via Instagram. Autocad Lesson 11 How to create a cartridge / A3Abonnez vous pour recevoir mes nouvelles vidéos Subscribe to receive new videoshttps//wwwyoutubecom/ch.

How to bring a layout from another drawing to the currently open drawing or template in AutoCAD To solve the issue, run the following steps Add a layout from an external drawing Rightclick a layout tab in the destination drawing Select "From template" Choose the file type (DWG, DWT, or DXF) of the source drawing Select the source drawing, then Open Choose a layout or layouts from the. How to bring a layout from another drawing to the currently open drawing or template in AutoCAD To solve the issue, run the following steps Add a layout from an external drawing Rightclick a layout tab in the destination drawing Select "From template" Choose the file type (DWG, DWT, or DXF) of the source drawing Select the source drawing, then Open Choose a layout or layouts from the. Cartouche 3D models 7 3D Cartouche models available for download 3D Cartouche models are ready for animation, games and VR / AR projects Use filters to find rigged, animated, lowpoly or free 3D models Available in any file format including FBX, OBJ, MAX, 3DS, C4D.

From now on it is the only cartouche editor available at CERN for designers working with Euclid, AutoCAD, and Catia Historically at CERN the cartouche has included the Bill Of Materials (BOM) and for that reason CartWeb will continue that philosophy CartWeb integrates a static BOM connected to the CERN catalog. Bonjour à tous, J'ai une grosse urgence il faut qu'avant ce soir je transmette des plans à une personne Cette personne m'a envoyé par mail son cartouche au format portrait Je dois insérer ce cartouche dans mon plan à moi ( qui est en A1) L'idée c'est qu'après pliage du plan A1, on se re. Decorative mouldings and architectural ornamentation by Pearlworks Resin casted trims and flexible molding for interior and exterior design and construction, fine architectural wood carvings Better than hardwood trim molding because its flexible.

Free CAD and BIM blocks library content for AutoCAD, AutoCAD LT, Revit, Inventor, Fusion 360 and other 2D and 3D CAD applications by Autodesk CAD blocks and files can be downloaded in the formats DWG, RFA, IPT, F3DYou can exchange useful blocks and symbols with other CAD and BIM users.

Forum Solidworks Propriete Personnalisees Cao

3

Faire Un Cartouche Autocad Avec Des Attributs Renseignes Par Des Champs Youtube

Autocad Des Solutions Aux Problemes Avec Les Textes Aplicit

Comment Creer Un Cartouche Utilisateur Et Des Cadres De Presentation Graitec Lineis

Dessinateur Autocad Dessins Techniques 3dgraphiste Fr

Alphorm Com Support Formation Autocad 16 Atelier Architectural Ss

Http Www Groupeisf Net Technologie Indus Autocad 5gabarit Pdf

Revitez 10

Pour Personnaliser Un Cartouche Autocad Mechanical Toolset Autocad Mechanical 19 Autodesk Knowledge Network

Autofluid Hotline

Cours Autocad For Android Apk Download

Plot Scales For The Paper Space Zoom Xp In Autocad

Modifier La Liste Des Echelles Autocad Aplicit

Lecon 11 Autocad Comment Creer Un Cartouche Fromat A3 Youtube

Modeles De Feuille Freecad Documentation

Autocad Inserer Une Date Automatique Tg Dessinateur Independant

Telecharger Cartouche De Plan Autocad Creer Un Cartouche Autodesk

Autocad Cours 9 Niveau 2

Tp Sur Autocad V 13 A 16 Creez Des Dessins Techniques En 2d Enonce 8 1 Consultation Du Cartouche Avec Attributs A Realiser

Cours Autocad For Android Apk Download

Flashcartouche Gestion Des Blocs Cartouche

3em Dao Electrique Creation D Un Gabarit De Cartouche Pdf Autocad Informatique

Title Blocks For Cad

Comment Creer Un Cartouche

30x40 Design Workshop S Autocad Template File Old Version Architecture Portfolio Architecture Drawing Plan Architect Drawing

Autocad Mettre En Page Pdf Free Download

Creation D Un Cartouche Part1 Youtube

Q Tbn And9gcsj8 Lulc7pv2aaiqxqagw1z9lqtokrgzcezps8ixe6rf Onnd0 Usqp Cau

Autosez Manual Progesoft

Epingle Sur Et Si J Avais Poursuivi

Bloc Cad D Un Modele A3 Cadblocksfree Cad Blocks Free

Formation Autocad 2d Cartouche Et Impression Youtube

Download Cartouche Standard Autocad Weedfasr

Meilleur Tuto Gratuit Autocad 16 3 5 Atelier Mecanique Elaboration Du Cartouche Alphorm Com

Comment Faire Apparaitre Les Principales Informations De Mon Projet Dans Le Cartouche De Mes Plans Graitec Lineis

Autocad Creer Et Remplir Un Cartouche De Plan Avec Attributs Alphorm

Note Technique Le Documen

Www Laval Ca Documents Pages Fr Affaires Taxes Et Permis Commerciaux Guide Normes Dessin Pdf

Autocad 16 Cartouche Attributs Champs Proprietes Du Dessin Youtube

Resultat De Recherche D Images Pour Bibliotheque Cartouche Autocad Autocad Bibliotheque Images

Comment Personnaliser Le Cartouche Qui Apparait Sur Les Plans Graitec Lineis

Pdf Formation Pour Apprendre Autocad Pour Debutant Formation Informatique

Pour Ajouter Ou Modifier Des Attributs De Cartouche Autocad P Id 16 Autodesk Knowledge Network

Autofluid Hotline

Modele Cartouche Dwg Telechargement

Telecharger Cartouche Gratuit Gratuiciel Com

Quels Sont Les Attributs Disponibles Dans Les Cartouches Graitec Lineis

Formation Autocad 2d Exercice De Fin De Formation F2 Cad Academy

Ornamental Plaster Mouldings Appliques Cartouches Capitals Dwg Block For Autocad Designs Cad

Comment Faire

Didacticiels Creer Un Cartouche

Dessinateur Autocad Dessins Techniques 3dgraphiste Fr

Ou Trouver Des Gabarits De Cartouche Pour Autocad Autocad Autodesk Knowledge Network

Q Tbn And9gcsrhbhmvazqr4uldog2dtl9zpqdetgp7dz6ht8re09 Uzaolddo Usqp Cau

Autocad Le Blog Ordre D Affichage Et Synchronisation Des Attributs

Flashcartouche Gestion Des Blocs Cartouche

All Categories Buildingcrimson

Title Block

2

Autocad Creation Cartouche Du Plan Normalise Partie 1 Dessin Gabarit Youtube

Tp Sur Autocad V 13 A 16 Creez Des Dessins Techniques En 2d Enonce 8 1 Consultation Du Cartouche Avec Attributs A Realiser

Telecharger Cartouche Revit

Didacticiels Creer Un Cartouche

A1 Modele Un Cartouche Bloc Libre De Cad Cadblocksfree Cad Blocks Free

16 Aide De Solidworks Cartouches

Revitez Revit 11 Creez Des Cartouches Adaptables Directement Sur La Feuille

Drafting Cartouche 3d Cad Model Library Grabcad

Formation Autocad Amiens Home Facebook

Autocad Des Fondamentaux A La Presentation Detaillee Autour De Projets Professionnels Etape 3 Creer Un Cadre De Presentation Et Inserer Le Cartouche

Q Tbn And9gcq4h Mtsbqpakr6f Klwcahbrunkbfd7mcuxdk6y0kgyjpe0pfb Usqp Cau

Modeles De Feuille Freecad Documentation

Un Gabarit Peut Contenir Differents Elements Ou Parametres

Didacticiels Creer Un Cartouche

Guideautocad

Autocad Le Texte Sort Du Cartouche La Solution Aplicit

Modeles De Feuille Freecad Documentation

Buyandsell Gc Ca Cds Public 18 09 21 D4afe87f301c8e6cd16a05dcc36e553f Norme De Dessins Gcc Pdf

Telecharger Cartouche A3 Dwg Gratuit

Autocad Inserer Une Date Automatique Tg Dessinateur Independant

Telecharger Cartouche Simple A3 Format Revit Categorie Divers Hexabim

Exercice Autocad

Draw A Professional Autocad Floor Plan Of Your Real Estate By Imagein3

Cartouche Et Affichage Autocad Plant 3d 18 Autodesk Knowledge Network

Impression Cartouche Autocad Electrical Youtube

Telecharger Cartouche A3 Dwg Gratuit

Comment Placer Un Cartouche Sur Une Mise En Page Dans Autocad Autocad Autodesk Knowledge Network

Comment Creer Un Cartouche Utilisateur Et Des Cadres De Presentation Graitec Lineis

Cartweb User Guide

Download Cartouche Standard Autocad Fasrrb

Formation Autocad 2d Exercice De Fin De Formation F2 Cad Academy

Comment Creer Un Cartouche Utilisateur Et Des Cadres De Presentation Graitec Lineis

Autocad Creer Et Remplir Un Cartouche De Plan Avec Attributs

07 Tutoriel Freecad Mise En Plan Cartouche Et Cotation Plan Autocad Avec Cotation Autocad Design Pallet Workshop

Solved Autocad Error Openning Autodesk Mechanical Desktop File Titleblock Extraction Autodesk Community Autocad

Comment Creer Un Cartouche Utilisateur Et Des Cadres De Presentation Graitec Lineis

Les Bases D Autocad Autocad Les Bases Pdf Telechargement Gratuit

Alphorm Com Support Formation Autocad 16 Atelier Architectural Ss